Mitsubishi Electric MFZ-KT 5 kW parapetes inverteres split klíma
MITSUBISHI ELECTRICSzállítással kapcsolatos információk
Partnereink
Szállítási idő
Munkanapokon: reggel 8 és 17 óra között
Az MFZ-KT parapet készülék különösképpen alkalmas
azokban az esetekben, amikor rendszeresen használják mind
hűtő, mind fűtő üzemmódban. A fűtőtesthez hasonlóan
telepíthető a padló közelében.
Multiflow-Vane-funkció
• levegőelosztás fűtő üzemmódban egyszerre felfelé és
lefelé, az ideális légkeringés biztosítására a helyiségben és
a helyiség gyors felmelegítésére
• hűtő üzemmódban a levegőkibocsátás csak felfelé a
legjobb hatékonyság elérése érdekében
Szűrő
• légtisztító szűrő ezüst-ion bevonattal
• V-Blokkoló szűrő
i-save
• Az előnyben részesített üzemállapot mentése
Hűtőközeg-detektor
• Beépített hűtőközeg-detektor az esetleges szivárgások
korai felismeréséhez
A heti időzítő funkcióval rendelkező infravörös távvezérlő
a szállítási terjedelem része.
MELCloud WiFi-Adapter(opció)
| Kültéri egységek típusa | SUZ-M25VA | |
| Hűtés | Teljesítmény | 2,5 (1,6-3,2) (kW) |
| Teljesítményfelvétel | 0,62 (kW) | |
| Fűtés | Fűtési teljesítmény | 3,4 (1,3-4,2) (kW) |
| Fűtés: fűtési teljesítmény | Fűtési teljesítmény | 3,4 (1,3-4,2) (kW) |
| Fűtés | Teljesítményfelvétel | 0,91 (kW) |
| Fűtés: Teljesítményfelvétel | Teljesítményfelvétel | 0,91 (kW) |
| Hűtés: SEER | Hűtés: SEER | 6,5 |
| Hűtés: energetikai besorolás | Hűtés: energetikai besorolás | A++ |
| Fűtés: SCOP | Fűtés: SCOP | 4,2 |
| Üzemi tartomány hűtésben | Üzemi tartomány hűtésben | −10~+46 (°C) |
| Fűtés: Energiahatékonysági osztály | Fűtés: Energiahatékonysági osztály | A++ |
| Üzemi tartomány (Fűtés) | Üzemi tartomány (Fűtés) | −10~+24 (°C) |
| Beltéri egységek típusa | MFZ-KT25VG | |
| Levegő-térfogatáram hűtő üzemmódban a/m | Levegő-térfogatáram hűtő üzemmódban a/m | 234/468 (m³/h) |
| Hangnyomásszint Hűtés/Fűtés alacsony | Hangnyomásszint Hűtés/Fűtés alacsony | 19 / 19 (dB(A)) |
| Hangnyomásszint * Hűtés/Fűtés | Hangnyomásszint * Hűtés/Fűtés | 19 / 19 (dB(A)) |
| Hangnyomásszint Hűtés/Fűtés | Hangnyomásszint Hűtés/Fűtés | 45 / 46 (dB(A)) |
| Hangnyomásszint Hűtés/Fűtés magas | Hangnyomásszint Hűtés/Fűtés magas | 37 / 37 (dB(A)) |
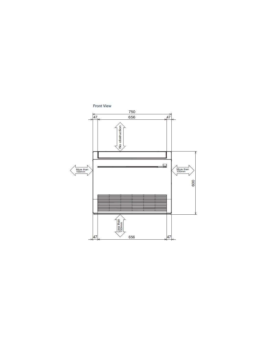
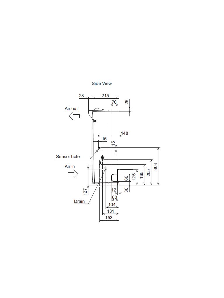
| Méretek Mély | Méretek Mély | 215 (mm) |
| Méretek Magasság | Méretek Magasság | 600 (mm) |
| Méretek Szélesség | Méretek Szélesség | 750 (mm) |
| Méretek (Szélesség/Mélység/Magasság) | Méretek (Szélesség/Mélység/Magasság) | 800/285/550 (mm) |
| Tömeg | Tömeg | 14,5 (kg) |
| Teljes csövezési hossz | Teljes csövezési hossz | 20 (m) |
| Gyárilag előtöltött csőhossz | Gyárilag előtöltött csőhossz | 7 (m) |
| Maximális magasságkülönbség | Maximális magasságkülönbség | 12 (m) |
| Hűtőközeg típusa/mennyisége (kg)/ max. mennyisége (kg) GWP/ CO₂-ekvivalens (t)/ CO₂-ekvivalens max. (t) | Hűtőközeg típusa/mennyisége (kg)/ max. mennyisége (kg) GWP/ CO₂-ekvivalens (t)/ CO₂-ekvivalens max. (t) | R32 / 0,65 / 0,91 675 / 0,44 / 0,61 |
| Hűtőközeg csöméret Ø folyadék | Hűtőközeg csöméret Ø folyadék | 6 (mm) |
| Hűtőközeg csöméret Ø gáz | Hűtőközeg csöméret Ø gáz | 10 (mm) |
| Hűtőközeg utántötési mennyisége | Hűtőközeg utántötési mennyisége | 20 (g/m) |
| Feszültségellátás | Feszültségellátás | 220-240, 1, 50 (V, fázis, Hz) |
| Üzemi áramfelvétel | Üzemi áramfelvétel | 3,5 (A) |
| Kültéri egységek típusa | SUZ-M50VA | |
| Hűtés | Teljesítmény | 5,0 (1,2-5,6) (kW) |
| Teljesítményfelvétel | 1,55 (kW) | |
| Fűtés | Fűtési teljesítmény | 6,0 (1,5-7,2) (kW) |
| Fűtés: fűtési teljesítmény | Fűtési teljesítmény | 6,0 (1,5-7,2) (kW) |
| Fűtés | Teljesítményfelvétel | 1,86 (kW) |
| Fűtés: Teljesítményfelvétel | Teljesítményfelvétel | 1,86 (kW) |
| Hűtés: SEER | Hűtés: SEER | 6,8 |
| Hűtés: energetikai besorolás | Hűtés: energetikai besorolás | A++ |
| Fűtés: SCOP | Fűtés: SCOP | 4,2 |
| Üzemi tartomány hűtésben | Üzemi tartomány hűtésben | −15~+46 (°C) |
| Fűtés: Energiahatékonysági osztály | Fűtés: Energiahatékonysági osztály | A++ |
| Üzemi tartomány (Fűtés) | Üzemi tartomány (Fűtés) | −10~+24 (°C) |
| Beltéri egységek típusa | MFZ-KT50VG | |
| Levegő-térfogatáram hűtő üzemmódban a/m | Levegő-térfogatáram hűtő üzemmódban a/m | 336/624 (m³/h) |
| Hangnyomásszint Hűtés/Fűtés alacsony | Hangnyomásszint Hűtés/Fűtés alacsony | 28 / 29 (dB(A)) |
| Hangnyomásszint * Hűtés/Fűtés | Hangnyomásszint * Hűtés/Fűtés | 28 / 29 (dB(A)) |
| Hangnyomásszint Hűtés/Fűtés | Hangnyomásszint Hűtés/Fűtés | 48 / 49 (dB(A)) |
| Hangnyomásszint Hűtés/Fűtés magas | Hangnyomásszint Hűtés/Fűtés magas | 42 / 44 (dB(A)) |
| Méretek Mély | Méretek Mély | 215 (mm) |
| Méretek Magasság | Méretek Magasság | 600 (mm) |
| Méretek Szélesség | Méretek Szélesség | 750 (mm) |
| Méretek (Szélesség/Mélység/Magasság) | Méretek (Szélesség/Mélység/Magasság) | 800/285/714 (mm) |
| Tömeg | Tömeg | 14,5 (kg) |
| Teljes csövezési hossz | Teljes csövezési hossz | 30 (m) |
| Gyárilag előtöltött csőhossz | Gyárilag előtöltött csőhossz | 7 (m) |
| Maximális magasságkülönbség | Maximális magasságkülönbség | 30 (m) |
| Hűtőközeg típusa/mennyisége (kg)/ max. mennyisége (kg) GWP/ CO₂-ekvivalens (t)/ CO₂-ekvivalens max. (t) | Hűtőközeg típusa/mennyisége (kg)/ max. mennyisége (kg) GWP/ CO₂-ekvivalens (t)/ CO₂-ekvivalens max. (t) | R32 / 1,20 / 1,66 675 / 0,81 / 1,12 |
| Hűtőközeg csöméret Ø folyadék | Hűtőközeg csöméret Ø folyadék | 6 (mm) |
| Hűtőközeg csöméret Ø gáz | Hűtőközeg csöméret Ø gáz | 12 (mm) |
| Hűtőközeg utántötési mennyisége | Hűtőközeg utántötési mennyisége | 20 (g/m) |
| Feszültségellátás | Feszültségellátás | 220-240, 1, 50 (V, fázis, Hz) |
| Üzemi áramfelvétel | Üzemi áramfelvétel | 5,58 (A) |
- Teljesítmény
- 5 kW
- Fűtőteljesítmény
- 6 kW
- Hűtőteljesítmény
- 5 kW
- Garancia
- 60 hónap
- Méretek (magasság x szélesség x mélység)
- 800/285/714 mm
- Tömeg
- 14,5 kg
- Szín
- Fehér
- Zajszint
- 48 dB(A)
- Wifi
- Beépített
- Fűtésre optimalizált klíma
- Igen
- Kérhető H tarifa
- nem